No.1 香港网上搵楼平台
Language 语言
|
会员登入
|
会员注册
地产主页
买楼
租屋
新盘
服务式住宅
屋苑成交
物业估价
家具
置业按揭
新闻资讯
校网
地产代理
易发楼价指数
地产主页
屋苑成交
九龙
新蒲岗,黄大仙
黄大仙
荟鸣
荟鸣
Phoenext
鸣凤街28号
如需查看有关一手新盘资料请按这里:
荟鸣
荟鸣 最新楼价走势
(最近90日, 逢星期六更新)
平均成交尺价
--
成交量
--
有盈利比例
--
蚀让比例
--
一年转手率(二手)
--
一年前尺价
--
放盘叫价
$388 万元 - $618 万元
15个 放盘
@16,517 - @27,345
* 有关屋苑平均成交尺价是使用最近的成交资料 (90日), 作平均计算
荟鸣 最新租赁市场
(最近90日, 逢星期六更新)
平均成交尺租
$58.0 元
成交量
7宗
租务回报率
--
租务活跃率
20%
租盘叫价
$12,900 元 - $17,500 元
4个 租盘
@65 - @71
荟鸣 成交纪录
买卖
租务
物业地址
面积
成交价钱
盈利/蚀让
荟鸣
|
荟鸣 低层 K室
2026-02-23
市场成交
1房
实242尺
$373.2 万元
@
$15,423
-
荟鸣
|
荟鸣 中层 K室
2026-02-01
市场成交
1房
露台
实242尺
$380 万元
@
$15,702
-
荟鸣
|
荟鸣 低层 K室
2025-12-05
市场成交
1房
实237尺
$383 万元
@
$16,160
-
载入中。。。
更多
荟鸣 楼盘
1 房 ( 8间 )
$388万 - $488万
2 房 ( 4间 )
$388万 - $618万
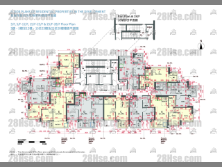
荟鸣 平面图
屋苑座数
屋苑座数
荟鸣
1
/4
物业布局图
荟鸣 2楼
荟鸣 3-28楼
荟鸣 28楼
此屋苑期数或座数没有平面图
收藏屋苑
分享
屋苑资料
宏安
新盘
单幢
荟鸣由宏安发展,位于黄大仙鸣凤街28号,提供230伙,包括21伙开放式,126伙1房户,63伙2房单位,以及20伙特色单位,标准单位实用面积由200至375平方尺。
物业座数:
1座
入伙年份:
2025 年
发展商:
宏安
管理公司:
高达管理有限公司
单位数目:
230伙
小学校网:
相关楼盘
43校网(黄大仙区)
中学校网:
相关楼盘
黄大仙区(KL4)
荟鸣 地产代理公司
权都地产代理有限公司
九龙新蒲岗五芳街9-11号10楼3室
售盘 3
租盘 70
世纪21尚汇地产
九龙九龙湾宏光道8号创豪坊8楼811室
售盘 2
租盘 4
香港置业
东涌迎东路1,3,及5号 迎康街1号升荟商场1楼3号铺
售盘 15
租盘 1
地图
荟鸣 地图
载入中。。。
交通
商场
餐饮
学校
银行
医疗
金凤街休憩处( 巴士站 )
2分钟 步行
黄大仙消防局( 巴士站 )
2分钟 步行
美德楼( 巴士站 )
2分钟 步行
秀芳花园商场
3分钟 步行
豪苑商场
4分钟 步行
新光购物中心
4分钟 步行
柚籽厨房
1分钟 步行
健康斋厨
1分钟 步行
金满海鲜坊
1分钟 步行
圣母书院
1分钟 步行
圣母幼稚园
2分钟 步行
圣文德书院
3分钟 步行
恒生银行 慈云山分行
2分钟 步行
创兴银行 慈云山分行
2分钟 步行
恒生银行 港铁黄大仙站
5分钟 步行
圣母医院
2分钟 步行
圣母医院家庭医学诊所
2分钟 步行
东华三院黄大仙医院
4分钟 步行
相关屋苑比较
显示全部
现崇山
汇豪山
翠凤楼
怡庭居
安康大厦
秀芳花园
新光中心
慈祥大厦
钻岭
伯德大楼
荟鸣
现崇山
汇豪山
翠凤楼
怡庭居
安康大厦
秀芳花园
新光中心
慈祥大厦
钻岭
伯德大楼
楼龄
1 年
14 年
19 年
56 年
28 年
40 年
46 年
41 年
49 年
9 年
44 年
单位数目
230
970
312
118
176
69
140
496
220
234
84
平均尺价
--
$16,413 元
--
$7,862 元
$13,543 元
$11,133 元
$9,859 元
$12,711 元
--
$13,854 元
--
变动幅度
--
+2.17%
--
+7.58%
+0.62%
+7.75%
-5.74%
+5.72%
--
+1.78%
--
成交量
--
16宗
3宗
--
2宗
1宗
--
3宗
3宗
5宗
--
有盈利比例
--
75%
67%
--
0%
100%
--
33%
67%
20%
--
蚀让比例
--
25%
0%
--
100%
0%
--
33%
0%
80%
--
一年转手率
--
6.6%
1.9%
4.2%
5.7%
7.2%
2.9%
2.4%
2.7%
5.1%
3.6%
放盘叫价
$388 万元 - $618 万元
$930 万元 - $1,760 万元
$638 万元 - $920 万元
$280 万元 - $360 万元
$364 万元 - $418 万元
$362 万元 - $362 万元
$650 万元 - $730 万元
$498 万元 - $525 万元
$286 万元 - $319 万元
$338 万元 - $540 万元
$368 万元 - $380 万元
平均尺租
$58.0 元
$43.0 元
$46.0 元
--
$42.0 元
--
--
$39.0 元
--
$55.0 元
--
租务回报率
--
~ 3.2%
--
--
~ 3.8%
--
--
~ 3.7%
--
~ 4.7%
--
租务活跃率
20%
4.7%
0.3%
--
0.6%
--
--
0.6%
--
1.3%
--
相关屋苑比较 (显示全部)
相关新闻
誉港湾于新蒲岗旧区突围而出?3月7宗成交全数获利!4大原因成功保值吸客!
2026-03-30
953
一手抢客九龙独跌 楼价指数按周升1.22%|租金淡季逆市微升 距历史高位仅差不足1%
2026-03-27
1,813
【黄大仙新盘】荟淳首推50伙折实均尺18,088元 较同系新盘高18%|较同区二手盘贵逾30%
2026-03-20
7,505
撤辣引爆新香港人扫货潮 一组内地资金三个月砸1.05亿扫19伙
2025-12-09
1,014
房协「峻然」「聚然」收至少1.7万份申请超额认购近10倍 宏安黄大仙「荟鸣」推30%折扣优惠
2025-04-15
1,173
复制微信号
复制查询信息
打开Wechat应用程式,按「发现」后,再按「扫描」, 然后扫描以下QR Code 即可追踪28Hse Wechat 公众号。
确定
取消
确定
或
内容
姓名
联络电邮
联络电话
Whatsapp
重设
|
取消
发送
繁体中文
简体中文
English
预设
办公室 买卖
办公室 租务
车位 买卖
车位 租务
店铺 买卖
店铺 租务